欢迎来到北京阔达装饰官网!
客服专线: 010-84580331   加盟专线: 010-82272748 (工作日:9:00-18:00)

预约加盟

预约装修

客户服务

返回顶部

×

阔达标准工程,一看就不同!

全国累计已有一百余家加盟公司

×

免费获得家装服务

全国各地业主都在申请!

×

阔达装饰竭诚为您服务!

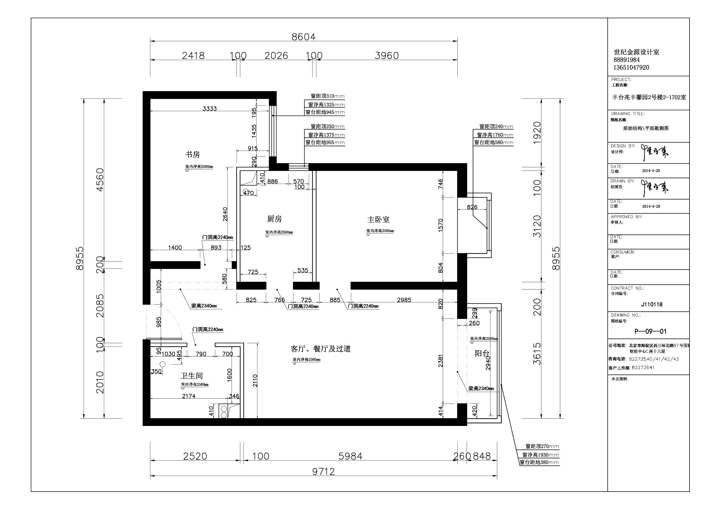
兆丰馨园

更新时间:2017-06-01

设计风格 简约 户型案例 一居 案例面积 70
楼盘名称 兆丰馨园 所在城市 北京 案例造价 11万
设计师

案例说明:

本案户型设计格局很合理,没有大的变动,通过造型吊顶和壁纸的相呼应,整体风格统一化,电视背景墙以白色石材为主线贯穿整体,使空间时尚大方。

同风格案例:更多>>
同面积案例:
兆丰馨园
兆丰馨园一居11万
靠山居
靠山居两室一厅一厨一卫9万
东罗园
东罗园两居7万